Gọi điện thoại
Gọi điện thoại
Gọi điện thoại

dự ánBiệt thự Anh Bi, Bình Phước

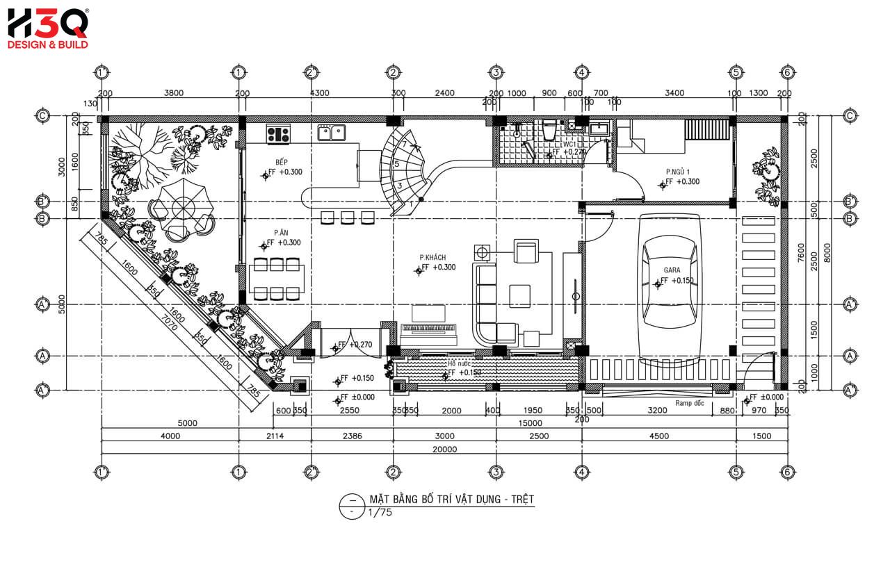
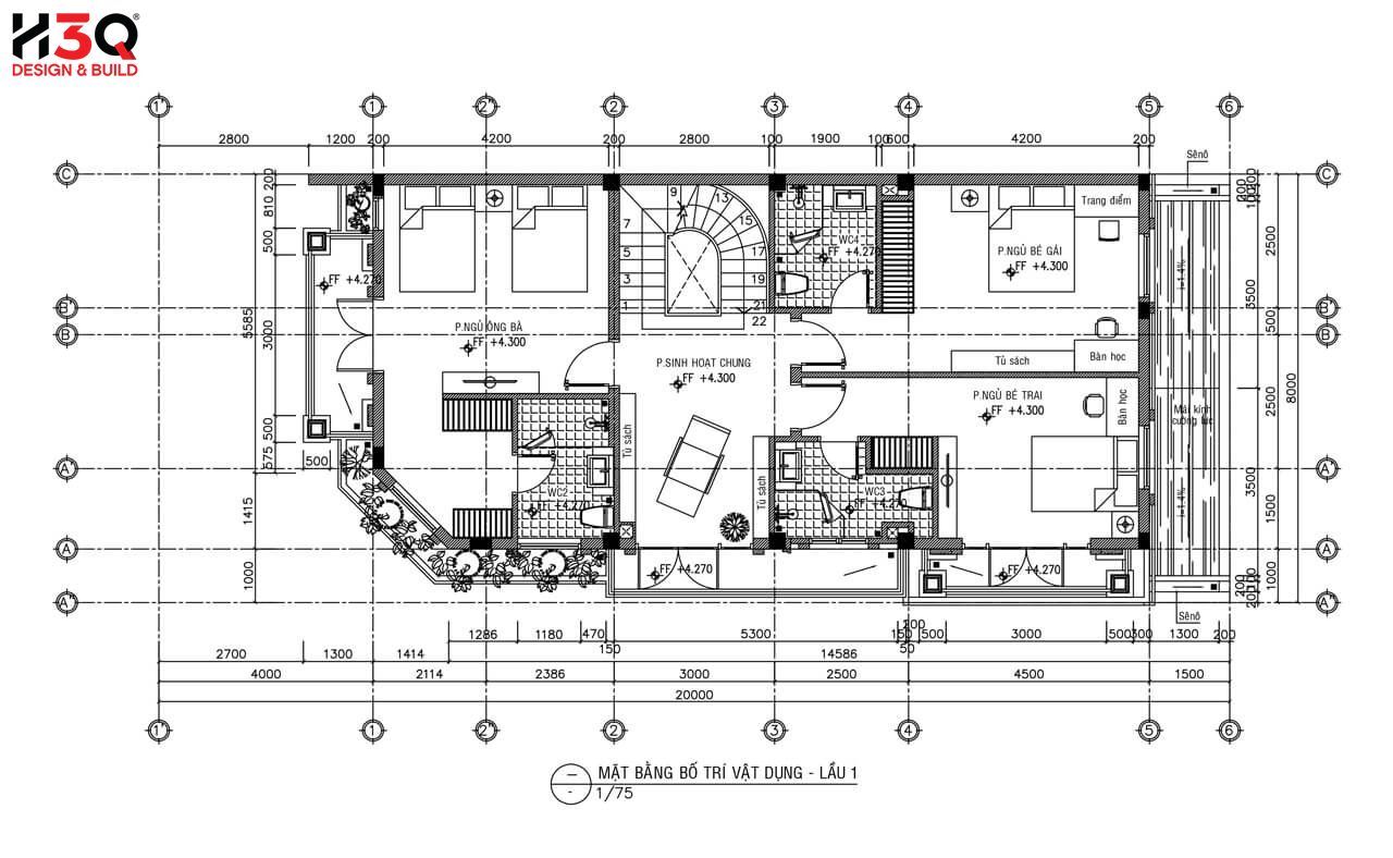
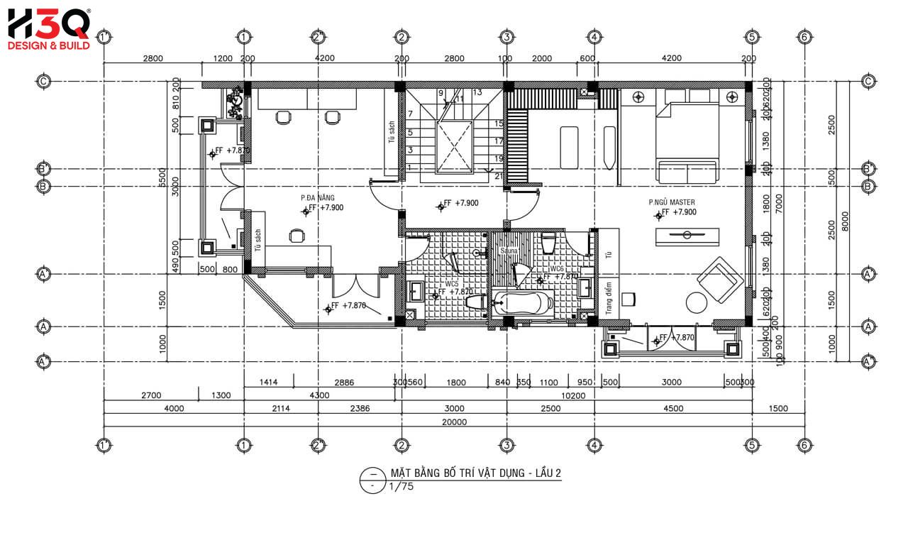
Biệt thự Anh Bi, Bình Phước

  • Diện tích: 8,0m x 20,0m
  • Địa chỉ: Bình Phước
  • Hạng mục: Thiết kế trọn gói; thi công xây dựng thô + hoàn thiện; nhôm kính; sản xuất, lắp đặt nội thất
  • Khách hàng: Lâm Văn Bi

dự án cùng loại